
| 输入特性 | |||||
|---|---|---|---|---|---|
| 输入电压 | 额定值 AC 220v | ||||
| 输入范围 | AC 85~265v | ||||
| 输出特性 | ||||||
|---|---|---|---|---|---|---|
| 电压调整精度 | 1% | |||||
| 源效应 | ±0.2% | |||||
| 负载效应 | ±0.4% | |||||
| 响应速度 | 400μs | |||||
| 纹波及噪声 | ≤1% | |||||
| 温度系数 | ±0.01%/℃ | |||||
| 输出电压调整范围 | ±15% | |||||
| 输出电压 | 3.3~110v | |||||
| 输出功率 | ≤300w | |||||
| 输出电流限制点 | 120%~150% | |||||
| 其它特性 | ||||||
|---|---|---|---|---|---|---|
| 开关频率 | 100khz | |||||
| 平均无故障时间(MTBF) | >300000h | |||||
| 耐电压强度 | 输入-输出>AC16000V | 输入-外壳>AC16000V | 输出-外壳>AC600V | |||
| 工作环境湿度 | 10~90% 无结露 | -25~55℃(工业品) | ||||
| 储存温度 | -40~105℃(工业品) | |||||
| 电源工作保护温度 | 85℃ | |||||
| 漏电流 | <4mA | |||||
| 典型型号 | |||||
|---|---|---|---|---|---|
| SGK150-AC220Z05-MB/L | SGK150-AC220Z12-MB/L | SGK200-AC220Z24-MB/L | |||
| SGK200-AC220Z48-MB/L | SGK150-AC220Z05//12-MB/L | 特殊规格可定制 | |||
| 产品外观 | |||||
|---|---|---|---|---|---|
![]() |
|||||
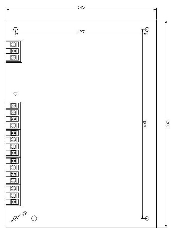
| 外壳尺寸 | |||||
![]() ![]() |
|||||
| 端子定义 | |||||
|---|---|---|---|---|---|
![]() |
|||||